
报名成功!
稍后客服会联系您,请保持电话畅通!
OK

金都华庭
实景图
效果图
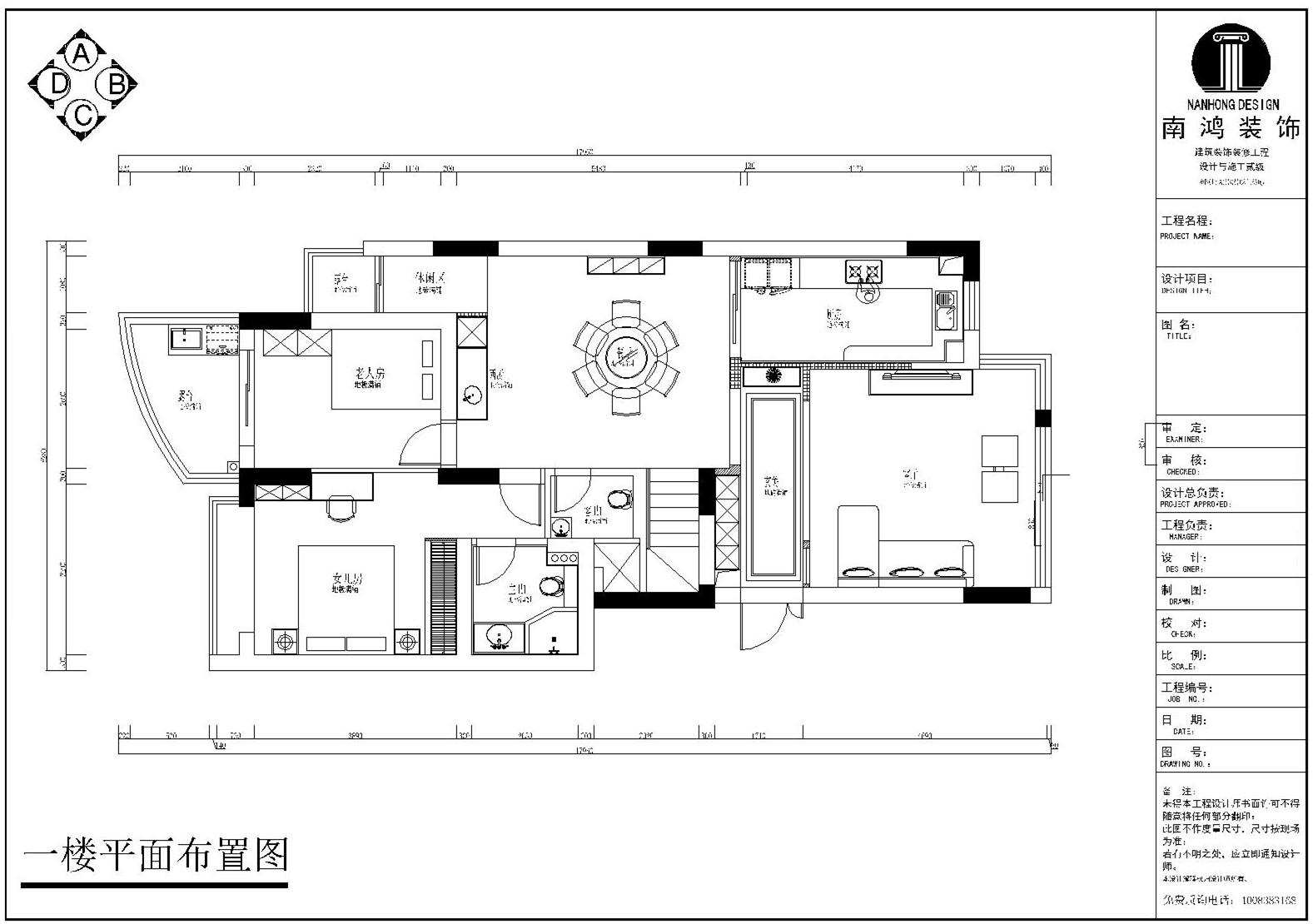
平面布置图
本案特点
原始平面图
案例展示
/ 玄关
Hallway

正对入户口的玄关走道
尽头处用矮柜辅以金框风景画和摆件
实现高雅艺术表达
/ 客厅
Living Room

设计师将原有的客餐格局重新规划
一层客厅在最大范围内打开
让光线与气韵流通
形成视野开阔、采光良好的会客休闲领域

5.4米的沙发背景墙自然成为整个客厅的视觉焦点
设计师选择了护墙板的形式
木板分割出的造型有助于进一步拉伸层高
大气高级的效果贯穿一二层空间

客厅在装饰上力求凸显典雅庄重的特点
华贵的深色沙发靠墙安放
金属镂空隔断在壁灯的照耀下泛起光泽
光滑的茶几表面折射着温度
优雅利落的奢华感,从种种细节间流露出来
/ 餐厅
Dining Room

餐厅使用圆桌
开放式操作台兼做餐边柜
中西结合让日常下厨更加方便
/ 厨房
Kitchen

厨房选择了传统的封闭式U型格局
并利用三面墙壁做出充足的储物空间
这种封闭式的设计
有效避免了外部用餐空间被油烟侵扰的问题
/ 楼梯
Staircase

木白配色的楼梯
低调地串联起上下层空间
原木质感给予家以宁静
墙上一幅山水画占据住了视觉焦点
/ 卧室
Bedroom

主卧面积宽敞,功能全面
卫生间衣帽间休闲区一应俱全

睡眠区风格庄重,仪式感足
皮革硬包背景搭配华贵家具
细节处倍感精致

柔和的光线透过窗子洒进阳台
优雅的主人坐在躺椅上静静品茶、看书
理想中的岁月静好似乎照进了现实

女儿房颜色饱和度都很低
一种纯粹的设计和生活方式就这样被唤醒

童趣主题墙面、云朵状的床头、可爱的小挂衣杆
能让小朋友在这里充分探索未知、创造快乐
/ 露台
Terrace

清晨泡杯花茶,等待阳光唤醒头脑
傍晚的时候,可以尽情享受晚风、星月
露台存在的意义,大概正在于此
/ 卫生间
Bathroom

现代感主卫空间使用灰黑色主调
悬空式的长台盆柜轻盈时尚
灯光布置层次分明
功能性与美感得到了统一

客卫玻璃淋浴间实现简单的干湿分离
金色的水龙头与台盆柜把手、落脚更显精致
私享定制家装服务 NICE HOME

算一算我家装修需要多少钱

私享定制家装服务 NICE HOME