
报名成功!
稍后客服会联系您,请保持电话畅通!
OK

蔚蓝领秀
实景图
效果图
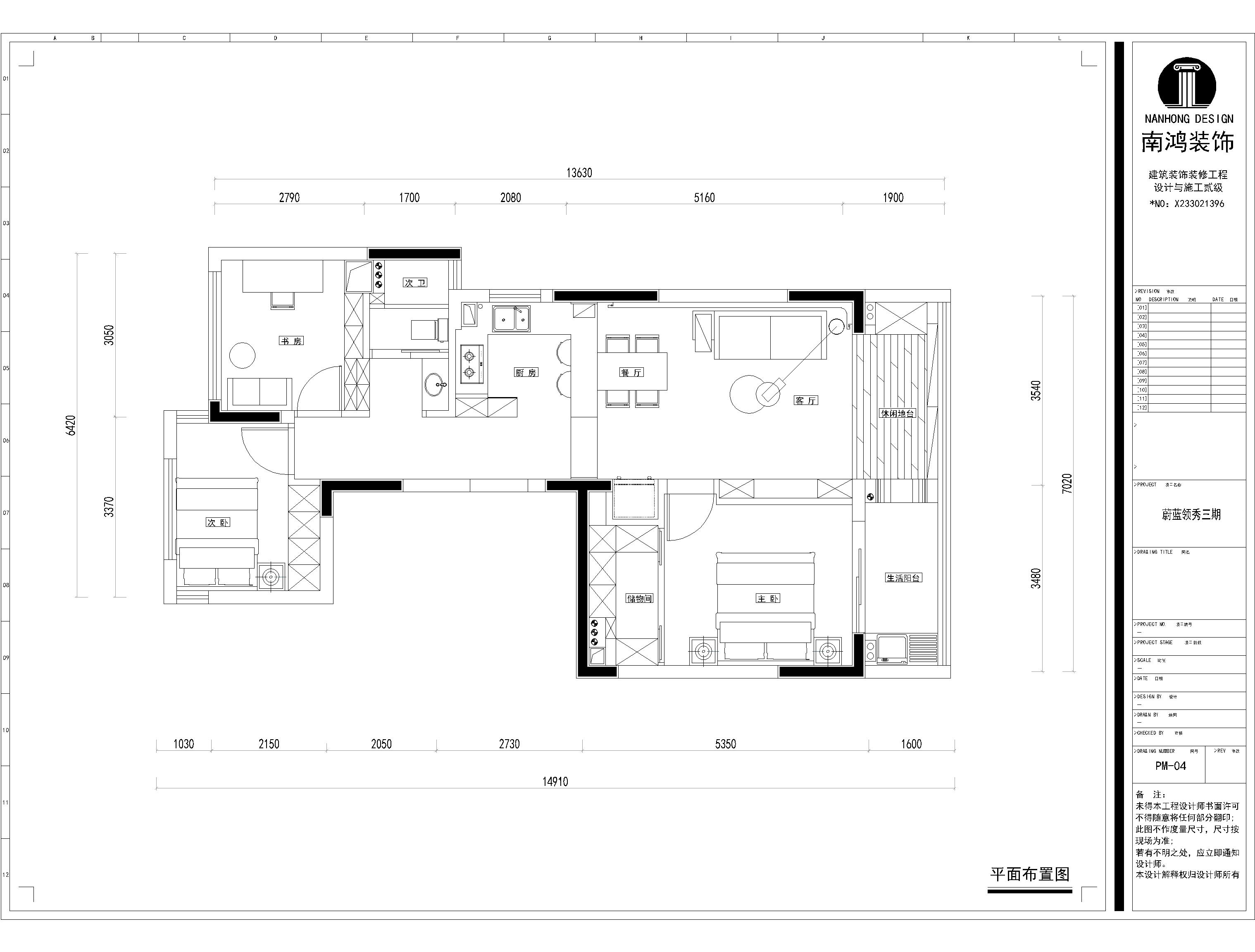
平面布置图
本案特点
原始平面图
案例展示
/ 玄关
Hallway

玄关定制了尺寸适中的柜子
中部搁板延长拉伸造型
并搭配长虹玻璃
避免入户直视厨房
/ 客厅
Living Room


至简的软装布置
带来心无旁骛的宁静感受
开放的设计连通不同功能区
保证室内动线的流畅、连贯

原木色与白色结合
徐徐散发温润悠长的气质
背景墙的弧线饱含着温柔
顶部无主灯设计则更显简洁

客厅包进阳台完善采光
并改造为地台
休闲阳台与生活阳台之间
用弧形门洞打通,增强互动感
/ 餐厨空间
Dining Room & Kitchen


具有烟火气的开放式餐厨空间
U型厨房布局在餐桌一侧延伸出吧台
餐厨交界处以木皮包裹墙顶面
并设计了搁板用来收纳酒品
/ 卧室
Bedroom

主卧的气质与主人相配,温婉柔和
背景挂画、洁白的羽毛灯和吊顶的雕花细节
提升整体空间的氛围感

卧室内用来收纳衣物的衣帽间区域
并嵌入了主人日常化妆所需的梳妆台
/ 书房
Study

书房延续了全屋的温柔格调
选用黑色柜体,色彩对比鲜明
/ 卫生间
Bathroom

卫生间做了干湿分离
白色的石纹瓷砖铺垫出
整洁有序的基调
私享定制家装服务 NICE HOME

算一算我家装修需要多少钱

私享定制家装服务 NICE HOME