
报名成功!
稍后客服会联系您,请保持电话畅通!
OK

水景城
实景图
效果图
平面布置图
本案特点
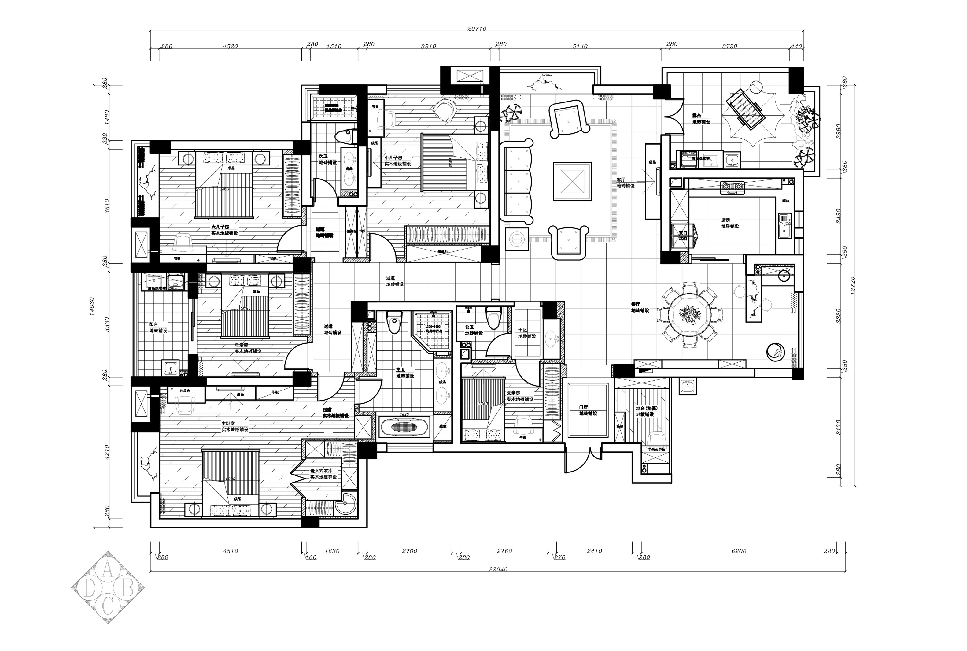
原始平面图
案例展示
/ 客厅
Living Room


客厅的地面选用深灰色抛釉砖
大理石材质的电视背景墙与之呼应
大面积蓝色系的运用
使客厅空间透出清爽自然的气息
背景墙、吊顶和家具中都加入了金色元素
透出优雅轻奢的味道


沙发结合了皮革、布艺和绒面,温暖舒适
桔色的抱枕作为跳色
为这方空间注入了活力和趣味
/ 餐厅
Dining Room

餐厅延续了客厅的硬装风格
与客厅之间毫无阻碍,动线流畅
开敞的空间能带给居住者更多有关美食的想象

明黄的花色在这个纯净的视界中
散发出鲜明而绚丽的审美意涵
让屋主在芳香中品尝人生百味
/ 主卧
Master Room

主卧背景墙风格与客厅相似
又借暖色的床品显现出空间个性
浅色木地板显得温润而舒适
/ 儿童房
Children's Room

背景墙选用浅蓝色墙漆装饰
搭配多彩的窗帘和纯白的高背床
简约中勾勒出活力色彩

房间进门一侧多放了一个书柜
结合另一侧的学习区
充分满足孩子读书时的日常需求
/ 卫生间
Bathroom

卫浴空间做了干湿分离
暖灰色的墙砖与地砖呼应
高级灰的浴室柜挑空设计
并点缀上精致金属细节

次卫采光充足,光线明亮
深蓝的卫浴柜搭配金色拉手
空间既沉稳又耐看
私享定制家装服务 NICE HOME

算一算我家装修需要多少钱

私享定制家装服务 NICE HOME