杭州

宁波

400-8800-618

在线咨询

联系我们

400-8800-618

回到顶部

报名成功!

稍后客服会联系您,请保持电话畅通!

OK

钱江府

设计师迎合业主需求,设计出功能性强并且造型优美的新古典主义风格,无论是家具还是配饰均以其优雅、唯美的姿态,平和而富有内涵的气韵,描绘出居室主人的高雅品味。

实景图

效果图

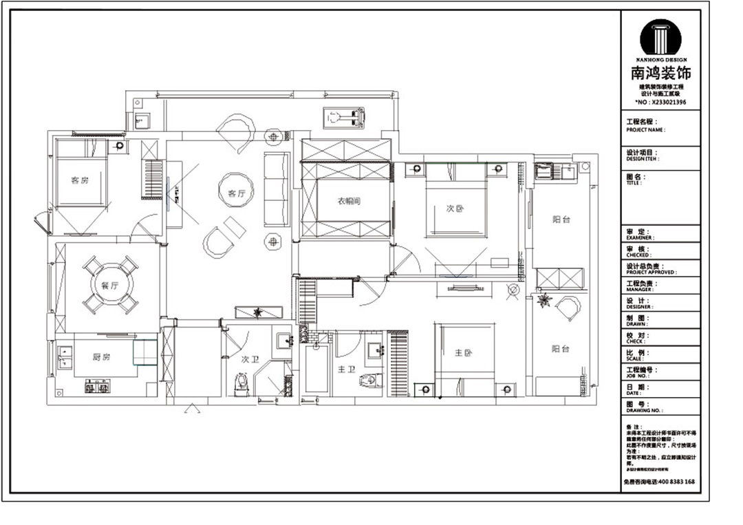
平面布置图

本案特点

整体空间以米白色为主,干净简单,也为其他的发挥提供最大的包容度。清浅的色彩过渡模糊界限,让所有的色彩联系更加紧密,也让客厅空间打破人为的刻板,焕发出自然的生命力。

原始平面图

案例展示

128方新古典 钱江府1.jpg128方新古典 钱江府2.jpg128方新古典 钱江府3.jpg128方新古典 钱江府4.jpg128方新古典 钱江府5.jpg128方新古典 钱江府6.jpg

128方新古典 钱江府8.jpg128方新古典 钱江府9.jpg128方新古典 钱江府10.jpg128方新古典 钱江府11.jpg128方新古典 钱江府12.jpg128方新古典 钱江府13.jpg128方新古典 钱江府14.jpg128方新古典 钱江府15.jpg128方新古典 钱江府16.jpg128方新古典 钱江府17.jpg128方新古典 钱江府18.jpg128方新古典 钱江府7.jpg

私享定制家装服务 NICE HOME

家装资讯

【装修设计】 好康的设计都有迹可循,这些百搭元素都要牢牢掌握!

2022-04-02

【家居装饰】 【江南学府】139㎡五居室设计,黑白灰的简净之家,真好看~

2021-12-14

【装修装备】 隔断不一定要整墙,半墙才是真的香啊!

2021-12-08

【家居装饰】 【白荡海人家】137㎡老房爆改,清透解压,一体式布局成亮点!

2021-12-08

【装修验收】 精装房改造要点,总之就是拒绝土气!

2021-12-08

算一算我家装修需要多少钱

私享定制家装服务 NICE HOME