
报名成功!
稍后客服会联系您,请保持电话畅通!
OK

新中宇维萨
实景图
效果图
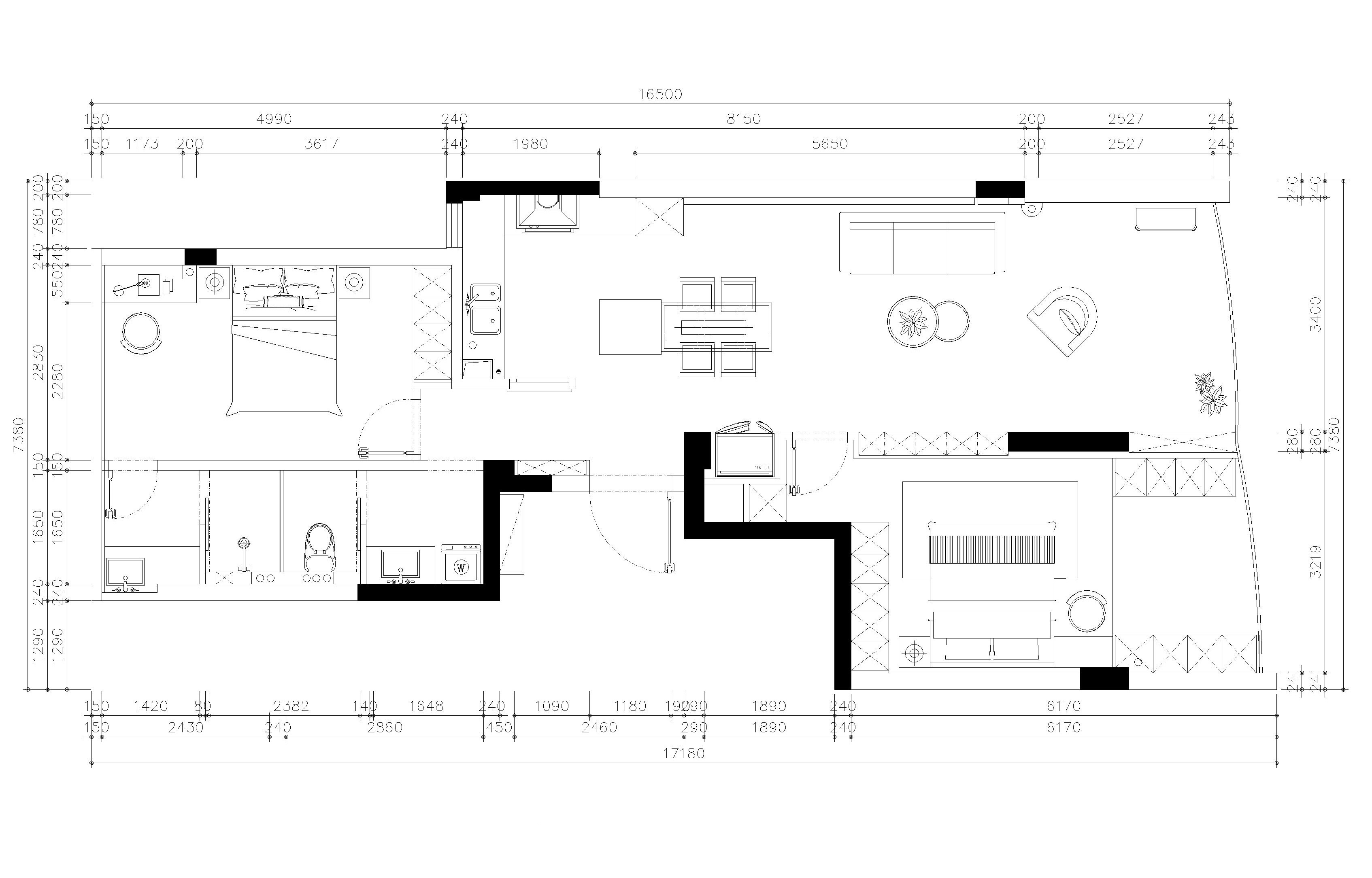
平面布置图
本案特点
原始平面图
案例展示
玄关 |
Hallway

玄关利用一侧矮柜做鞋物收纳,再辅以整面洞洞板,增添挂放物品的灵活性。

鞋柜对侧设计了朦胧感的压花玻璃作为轻隔断,起到一定遮挡作用,同时保有光影穿透性,搭配端景台来提升入户的仪式感。
客厅 |
Living Room

客厅打通阳台,视野明亮,墙顶地皆是统一的浅色,凭借色彩的延展性,进一步放大空间尺度。我们选配经典的奶油风云朵沙发和茶几,柔和的曲线语言构筑起温暖而有疗愈感的场域。沙发背景墙面运用了斯卡帕叠级手法,立体叠加的线条节奏,为简约空间注入更多艺术格调。


传统电视墙部分我们做了储物柜,嵌入式玻璃柜门搭配底部挑空设计,不做满的形式为空间保留了通透质地。顶面预埋投影幕布凹槽,确保设备隐匿时的极简观感。

沙发背景墙侧面还巧妙融入了白色小方砖拼贴装饰,与细腻奶油色墙面构成趣味反差,搭配一幅随性的落地画,空间自有视觉锚点又不显刻意,让归家时刻自然落入到温柔闲适的气场。
餐厅 |
Dining Room

开放式餐厨与客厅一体,形成通透性的居家场域。岛台+餐桌塑造高效洄游动线,嵌入式家电与定制橱柜无缝衔接,让整个场景干净而利落。
厨房 |
Kitchen


奶油色的橱柜与全屋风格相契合,搭配嵌入式隐形拉手,消弭了所有视觉冗余。同时烹饪跟备餐、就餐的动线贴近,也让下厨做饭变得无比高效。
卧室 |
Bedroom

从公区通往卧室的走廊接续了纯净色彩,在视觉上形成温柔的引导。



主卧延续了全屋简洁温馨的基调,顶面用弧形线条柔化轮廓,莹润的灯光为空间附着一层更深的暖调,蕴生宁静惬意之感。通顶衣柜结合开放格,搭配两组阳台柜,充分满足主人的储物需求。

次卧则以低饱和度的抹茶绿为主色调,背景墙面留白,营造静谧又有安全感的睡卧环境。
私享定制家装服务 NICE HOME

算一算我家装修需要多少钱

私享定制家装服务 NICE HOME