
报名成功!
稍后客服会联系您,请保持电话畅通!
OK

柳岸晓风
实景图
效果图
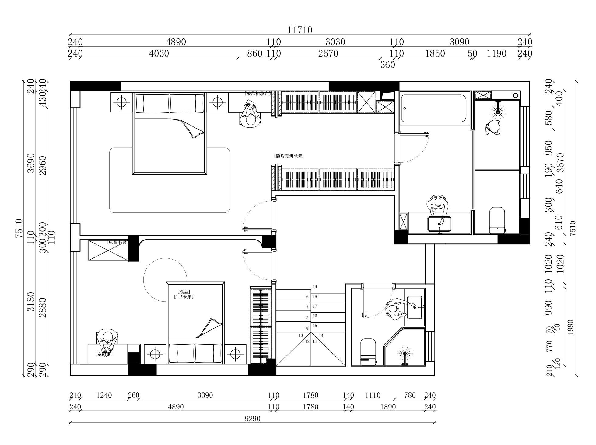
平面布置图
本案特点
原始平面图
案例展示
客厅 |
Living Room



客厅做木质电视背景墙储物柜,统一材质保留住视觉的纯粹,又能很好地解决收纳难题。沙发背景通过不同材质组合与几何线的分割,在简约中呈现出现代感的层次。
餐厅 |
Dining Room


餐厅打造圆顶圆桌的温馨格局,餐边柜以白色天然石材与温润木质的搭配,达成视觉上的温度平衡。
楼梯 |
Stairs

卧室 |
Bedroom



私享定制家装服务 NICE HOME

算一算我家装修需要多少钱

私享定制家装服务 NICE HOME